

Layouts
Map

3D-designed





















6-room flat, 385m², 4/11 floor
Your bet from 11.9%
Москва, str. Усачёва, 11
On map
Спортивная
11 min. (0.7 km)
Фрунзенская
8 min. (0.5 km)
Парк культуры
24 min. (1.6 km)
Do you want a discount?
Suggest your cost!
Description
Edited: 21.09.25
Вашему вниманию предлагается уникальная возможность стать владельцем роскошной квартиры в престижном комплексе элит-класса «ЖК Садовые кварталы». Эта просторная квартира общей площадью 385 м² — идеальное решение для тех, кто ценит комфорт и стиль.
Внутреннее пространство квартиры продумано до мелочей: шесть светлых спален обеспечат вам и вашим близким максимальное уединение и комфорт. Пять современных санузлов, оформленных с использованием высококачественных материалов, создадут атмосферу уюта и роскоши. Кухня, оснащенная бытовой техникой от ведущих немецких брендов «Liebherr» и «Miele», станет настоящим раем для кулинаров. Винная комната позволит вам хранить лучшие сорта вина, а просторная гостиная и уютная столовая станут идеальными местами для встреч с друзьями и семейных праздников.
Комплекс «ЖК Садовые кварталы» предлагает своим жильцам высокий уровень безопасности и комфорта. Вы сможете наслаждаться жизнью в окружении зелени и ухоженных территорий.
Звоните прямо сейчас!
Property Details
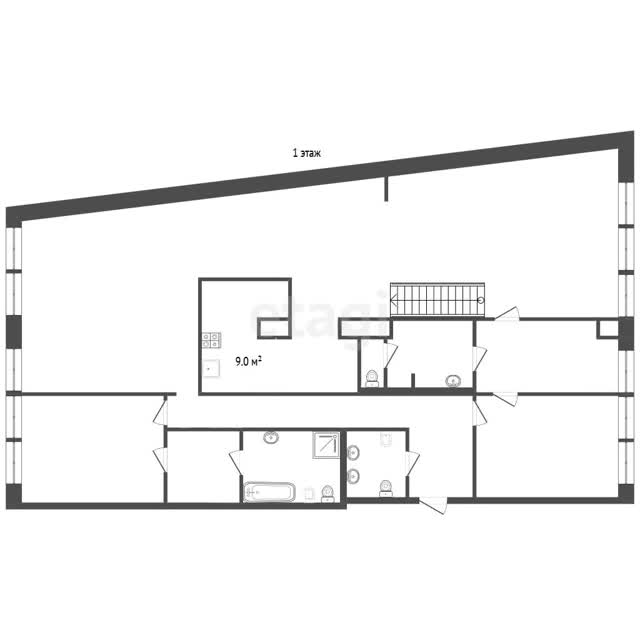
- Object code3885806
- Property Size385 m²
- Kitchen area9 m²
- RenovationDesign project renovation
- Floor/Number of floors4 out of 11
- Wall materialМонолитно-заливные
- Main
- Apartments
- Multi-room of flat
- Хамовники
- Усачёва
- Object code 3885806
